recoveryshake.com
HOME
About
Contact
Disclaimer
Privacy
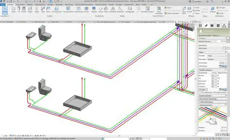
Key Features of PlumbingCAD Viega Edition
Oct 13, 2025
by recoveryshake.com
113
views